> 资讯

3天到访超2000组,龍樾海序如何点燃楼市“小阳春”?

2026-04-27 来源:互联网

  2026年的北京楼市“小阳春”如约而至。最新数据显示,3月份北京新房住宅成交量突破3400套,环比上涨192%;二手房网签量近2万套,环比2月上涨约145%,同比去年3月增长约3.4%,创下近15个月以来的新高。

 

  数据回暖的背后,是购房者表现出更理性的置业逻辑,而真正能够带动市场情绪的,仍然是少数具备“产品与区位双重优势”的项目。

  龍樾海序售楼处及样板间开放3天突破2000组,这一现象级的数据在当前市场环境下稀缺程度是毋庸置疑的,而爆火的背后,底层逻辑在于“极致的地段占位”与“跨代际的产品力”的双向奔赴。

 

  从区位来看,龍樾海序位于中轴与北五环线交汇区域,是北京的“黄金三角”地区,具备典型的“海淀外溢承接属性”。

 

  一方面,其距离海淀产业核心区仅一步之遥,本质上属于中关村产业外溢的第一承接区。项目周边3公里范围内,聚集东升科技园、金隅智荟中心等6大产业园区,入驻企业超过900家,覆盖人工智能、新能源、生命科学等前沿领域,形成稳定的高净值人群基础。

  另一方面,通过北五环快速路,可实现对中关村、上地、西二旗等大厂聚集地高效连接;轨道交通8号线、13号线叠加在建的东小口站,进一步提升区域通达性,形成稳定的“海淀通勤圈”。

  教育资源同样是该板块的重要支撑因素。区域内规划引入一贯制优质教育(市场普遍认为海淀六小强的101学校可能性最高),叠加现有全龄教育资源,使板块具备持续吸引改善型家庭的能力。

  本质上,龍樾海序营造的是一种“最海淀的生活”。从产业、交通到学校的综合来看,既有产业发展的活力支撑,又有高效便捷、舒适生活的品质保障,让置业者享受到海淀生活体验,成为整个昌平区域最具吸引力的置业选择。

  如果说地段决定了项目的下限,那么产品力则决定了其在红海中厮杀的上限。龍樾海序以“高规格、高得房、强功能”彻底打破了区域的产品定式。

 

  在公区营造上,项目以150米城市归家界面、77米归家大门,横向展开的大尺度空间,强化社区识别度。在约3.1万㎡的建设用地上,打造了近2.3万㎡的园林与约1万㎡央景花园,并奢配超1500㎡会所、1700㎡泛会所,将社区的社交属性与自然体验做到了极致。

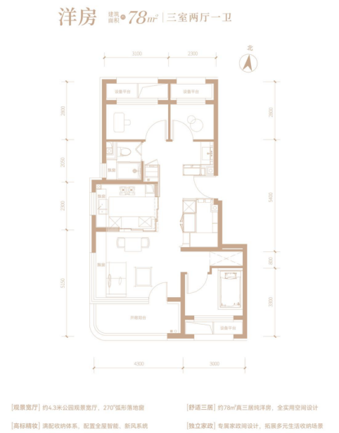
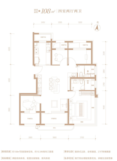
  在户型尺度上,项目以户户超90%空间使用率、最高99%使用率,实现了真正的“空间平权”。以本次开放的两大王牌户型为例:

  1. 建面约78㎡三居

  作为区域罕见的6-11层纯洋房形态,该户型在80㎡以内做到了全明全通透的“真三居”,最小户型超过7㎡,为区域首置及刚改客户提供了更具实用性与质价比的选择。客厅面宽达到4.3米,南向整体面宽7.3米,为区域80㎡以内最大,并配置270°弧形落地窗,配合南向首排的绝佳楼位,直面奥森公园,为小户型赋予了豪宅级别的视野与情绪价值。更让人惊喜的是,龍樾海序在78㎡空间中挤出2.6㎡的独立家政空间,硬造出大几千升的收纳容量,一举成为北京小户型的“收纳新王”。

 

  1. 建面约108㎡四居

  龍樾海序的108㎡不仅做到四居,且所有卧室空间宽绰,最小的北卧也超7㎡,是市场中的稀缺产品。八窗全明设计,创新引入的“景观花池”,开放空间为居者提供了极佳的独处空间;套房式主卧,配合270°转角飘窗,起居与观景体验拉满。此外,还配备独立家政空间与强大收纳体系,满足改善型家庭对功能与舒适度的双重需求。

 

  从市场角度看,龍樾海序的热度并非偶然,而是多重因素叠加的结果:一是东小口板块五年供应断档后的需求释放;二是海淀外溢客群对城市配套、通勤的需求适配;三是“好房子”标准逐步成为市场共识。

  在当前阶段,北京市场已从普涨逻辑转向结构性机会。具备区位承接能力、产品效率优势及价格匹配度的项目,更能在调整周期中形成快速去化。龍樾海序的两眼表现,既为调整期的北京楼市注入了一剂强心针,也为行业树立了“以产品力破局”的标杆样本。

下一篇: